
地址:1220 Orchid Circle, Bellport, NY, 11713
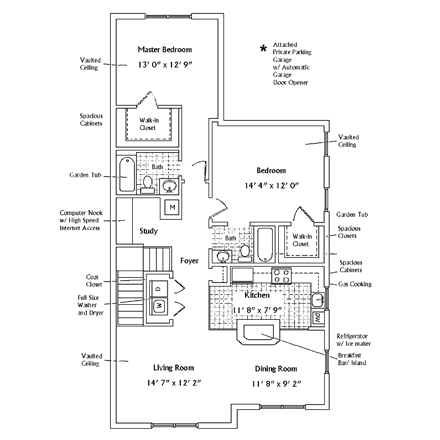
户型如图,两个卧室均带独卫,现招另一个bedroom舍友,卧室面积大约20平,1月起可以入住,房租1062.5/月。除此之外还要交一次性Amenity fee(每年),每人250。每月电气网均摊。
小区环境优美,大门有门禁,非常安全;公寓自带24小时健身房,泳池和桑拿,住户免费使用。有任何问题公寓都会负责维修管理;工作日每天都有人倾倒家里的垃圾,非常方便。统一管理,绝对让你住的省心。
开车15分钟到BNL,20分钟到StonyBrook,交通方便,且自带车库,停车位充足。
地处两个village中间,超市等一应俱全,开车到Costco 10分钟,到outlet 25分钟。
有意请联系微信:sunnythonatos
或者手机号码:3472488707
商量具体入住时间以及看房子的视频。
以下为样板房图片。






ChenZhou 发布于 2018-12-14T02:25:15Z

卫生间,传到这上面不知道为啥转过来了,还改不了